Венский Дом

Бизнес-центр класса В

О бизнес-центре

Венский Дом - это бизнес-центр, где ваша компания может раскрыть свой полный потенциал и достичь новых высот в городе. Здание класса B обеспечивает комфортные условия для работы, а суммарная площадь в 9500 м2 предоставляет широкие возможности для размещения вашего офиса, позволяя вам расширять свой бизнес и развивать новые идеи.

Мы предлагаем разнообразный спектр офисных помещений, оборудованных по последнему слову техники, чтобы обеспечить максимальную эффективность и продуктивность вашей команды. Отдельные кабинеты, конференц-залы, и современная инфраструктура - все это для вашего комфорта и успеха.

Наша команда поможет вам в реализации ваших бизнес-идей и обеспечит вам идеальные условия для работы. Мы готовы помочь вам в достижении успеха и предоставить вам все необходимые условия для развития вашей компании.

В класс
9500 общая площадь, кв. м
5 этажность здания
65 парковка (м/м)

Свободные площади на продажу

Этаж Площадь Налогообложение Стоимость,
за м2
Общая стоимость Состояние
6 этаж 1000 м2 150 000 руб. 150 000 000 руб.
Показать еще

Бесплатная отрисовка планировочных решений с любым количеством правок

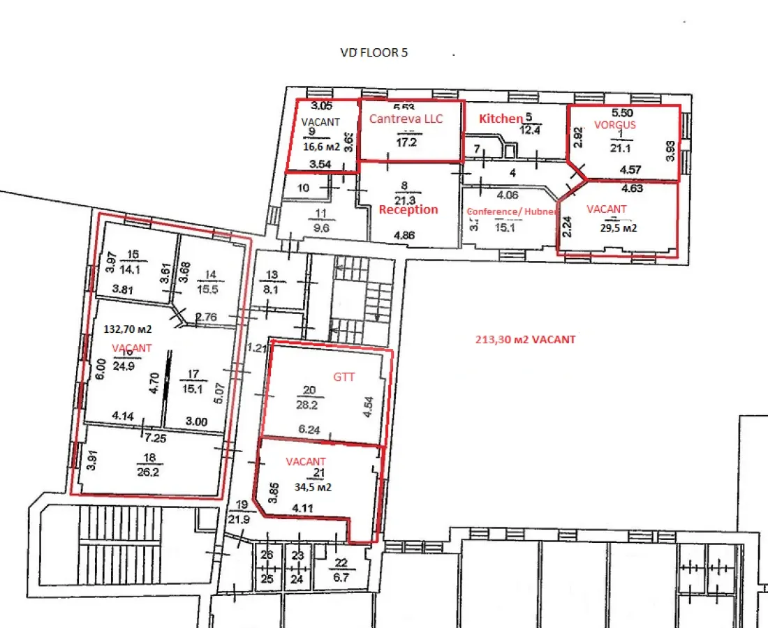
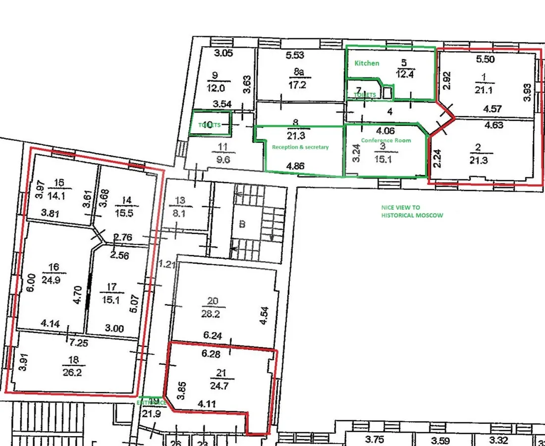
Планировка

Преимущества БЦ Венский Дом

класс В
Офисы в аренду готовы к въезду
ТРАНСПОРТНАЯ ДОСТУПНОСТЬ
Удобный доступ к Тверской улице и Садовому кольцу
ПАНОРАМНЫЕ ВИДЫ
С верхних этажей бизнес-центра
ПОДЗЕМНАЯ ПАРКОВКА
65 м/м
СООТНОШЕНИЕ ЦЕНА/КАЧЕСТВО
Одно из лучших предложений в округе
ХОРОШАЯ ЭКОЛОГИЯ
В окрестностях расположено несколько парков

Контакты

Адрес:
улица Петровка, д.27/16
Телефон:
+7(499) 113-46-34 — отдел аренды
Оставить заявку на просмотр
Отправляя свои данные, я соглашаюсь с Пользовательским соглашением и Политикой конфиденциальности